
20~29坪に建てる一戸建ての間取り6選
「せっかくのマイホームなのに、どこか後悔が残る…」
そうならないために、注文住宅を建てた先輩たちが感じた「後悔ポイント」を事前に知っておくことは、とっても大切です!
泉州・和歌山にお住まいの皆さんが、後悔なく理想の家づくりを進められるよう、後悔しやすいポイントとその対策をまとめてみました。
この記事を読めば、あなたの家づくりの不安がきっと軽くなりますよ!
20~29坪ってどれくらい?
20~29坪とは約66~96㎡(平米)、およそ畳40~58枚分のスペースです。
「不動産の表示に関する公正競争規約(表示規約)」において、「1辺を6尺(約1.818m)とする正方形」が1坪と定められているので、1坪は約3.3㎡、畳だと2枚分です。
※1畳=1.62㎡
なんだかとっても広いということはわかるのですが、㎡(平米)ってあまり馴染みがなくあまり具体的に想像できない。という方もいるのではないでしょうか。
1㎡(平米)とは、縦1m×横1mの正方形の面積と同じです。
例えば、縦5m×横6mの土地だと30㎡となります。なので正方形の30坪の場合は約、横10m×縦10mとなります。
注文住宅で建てた20~29坪の間取り
どんな間取りにしたらわからない!!という時はやっぱり参考になるのが先輩ママ達が建てた間取り。
間取りを決めるのに優先するのは家事動線だったり、部屋の広さだったりと色々ですが、間取りを見ることで新たな発見があるかも!
では、実際に泉州・和歌山地域で建てた先輩ママの20~29坪のおうちの間取りを見ていきましょう!
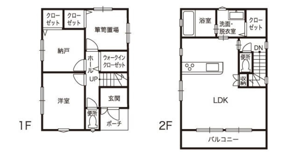
1|特殊な壁紙、インナーバルコニー、豊富な収納で掃除が楽。


- 敷地面積/98.9㎡(29.9坪)
- 1階床面積/55.93㎡(16.92坪)
- 2階床面積/50.96㎡(15.42坪)
- 延床面積/106.89㎡(32.33坪)
特殊な和紙や柄クロスなど、内装デザインを徹底的に追求。インナーバルコニーや掃除がしやすい建具を採用し、美しさと快適性を両立。豊富な収納で片付けが楽になり、いつでも綺麗な状態を保てるお家です。
2|家族の絆とデザイン性!ローコストで実現する家


- 敷地面積/72.86㎡(22.04坪)
- 1階床面積/39.74㎡(12.02坪)
- 2階床面積/42.23㎡(12.77坪)
- 延床面積/81.97㎡(24.80坪)
対面キッチンから家族を見渡せるLDK中心の設計。子ども部屋はあえて狭くし、家族がリビングで過ごす時間を重視。ヘリンボーンの床やネイビーの建具など、おしゃれなデザインをローコストで実現した注文住宅です。
3|生活動線がスムーズな平屋!子育てから老後まで

- 敷地面積/70.30㎡(21.27坪)
- 1階床面積/70.30㎡(21.27坪)
- 小屋裏収納面積/7.42㎡(2.24坪)
- 延床面積/77.72㎡(23.51坪)
階段がなく移動が楽で、家事動線・生活動線がスムーズ。家族が自然と集まる広々としたLDKを中心に設計でき、子育て中の安全確保や老後のバリアフリーにも優れています。耐震性にも優れる快適な住まいです。
4|浮いた書斎のある家

- 敷地面積:74.75m²(約22.61坪)
- 延床面積:114.97m²(約34.78坪)
- 1階延床面積:71.32m²(約21.57坪)
- 2階延床面積:43.65m²(約 13.20坪)
スキップフロアの段差を利用し、椅子座と掘りごたつ(床座)の食事スタイルを両立。階段上のスペースを活かした「浮いた書斎」はコスト削減にも貢献し、ご主人憧れの男の隠れ家に。遊び心と機能性が詰まった個性的な住まい。
5|無垢材の温もりと広く使う工夫


- 敷地面積:66.35㎡(20.07坪)
- 1階床面積:38.92㎡(11.77坪)
- 2階床面積:40.57㎡(12.27坪)
- 延床面積:79.49㎡(24.05坪)
無垢材が織りなす居心地の良い空間と温もりあるデザイン。20坪という限られた敷地を最大限活かすため、高い天井や引き戸を採用し、視覚的な広がりを演出。階段下の洗面などデッドスペースも徹底活用しています。
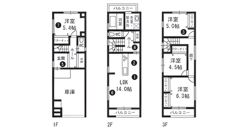
6|狭小地に最適!縦の空間を活かす3階建て


- 敷地面積:72.95㎡(22.06坪)
- 1階床面積:39.42㎡(11.92坪)
- 2階床面積:38.88㎡(11.76坪)
- 3階床面積:38.88㎡(11.76坪)
- 延べ床面積:117.18㎡(35.44坪)
限られた敷地で最大の床面積と部屋数を確保。フロアごとに用途を分けることでプライバシーを高め、採光や眺望も得やすいのが魅力です。水回りを集約するなど、上下移動の負担を減らす工夫が成功の鍵です。
失敗を防ぐための最重要ポイントは「誰に相談するか」!
いかがでしたでしょうか?
お家の間取りって見てるだけで想像がふくらんで楽しいですよね!
土地のカタチや、建ぺい率などで同じ30坪でも出来ることや出来ないことが変わってきますので、詳しい話が聞きたい!という方は工務店さんに行ってみて下さいね!
泉州・和歌山には相談に乗ってくれるやさしい工務店さんがおおいので、あなたの理想を伝えてみて下さい♪
おすまみに掲載中の地元の工務店さんは、あなたの小さな悩みや「こんな暮らしがしたい!」という想いを、親身になって丁寧に聞いてくれます。
「まだ具体的なイメージがない」「資金計画の相談だけしたい」といった段階でも、もちろん大歓迎です!
気になることがあれば、どうぞお気軽に各工務店さんの情報から資料請求や問い合わせをしてみてくださいね。
あなたの理想のマイホーム、おすまみと一緒に実現させましょう!

PROFILE:やんちゃ盛りの男の子のママ。我が家はどんな風にしようかな♪と、見てるとわくわくする記事を提供していけたらいいな~と思っています。


